Menü
eService
Direkt zu
Suche

Städtebauliche Projekte

Karlsruhe ist eine Stadt mit hoher Attrak­ti­vi­tät, davon zeugen die Bevöl­ke­rungs­zahlen, die seit vielen Jahren stetig ansteigen. Mit verschiedenen Konzepten und Visionen entwickelt Karlsruhe die räumliche Zukunft der Stadt. Viele Maßnahmen wurden bereits in Angriff genommen, um die Aufenthalts- und Lebensqualität weiter zu steigern.

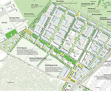
Quartier Zukunft Nord

Unser neues Quartier im Karlsruher Norden bietet nachhaltigen Wohnraum zwischen offenem Naturraum und vielfältiger Urbanität. Die Ausschreibung bietet Bürgerinnen und Bürgern die Möglichkeit ihr neues Quartier mitzubauen und mitzugestalten.

Baugruppen

Vor dem Hin­ter­grund des gesell­schaft­li­chen Wandels durch Globa­li­sie­rung und demogra­fi­sche Entwick­lung entstehen zunehmend neue Wohn­for­men, in denen Menschen aller Genera­tio­nen aktiv ihr Zu­sam­men­le­ben gestalten.

-

Kopieren Kopieren Schreiben Schreiben