Menü
eService
Direkt zu
Suche

Aus eins wird zwei

Zwei neue Dreifeldsporthallen in Oberreut geplant

© raum-z GmbH Archi­tek­ten

Die Sophie-Scholl-Realschule und die berufliche Engelbert-Bohn-Schule bilden zusammen das Schulzentrum Südwest in Karlsruhe-Oberreut. Auf dem Campus steht zudem eine Dreifeldsporthalle, allerdings aufgrund von massiven Mängeln nicht nutzbar und damit stillgelegt. Die aus den 1970er Jahren stammende Halle soll durch einen Neubau ersetzt werden. Aus einer sollen dabei sogar zwei neue Sporthallen werden.

„Der Entwurf der Frankfurter Architekten besticht vor allem durch sein modernes und stimmiges Design. Die umlaufenden Glaselemente in der Fassade sind dabei ein echter Blickfang und sorgen für viel Transparenz.“

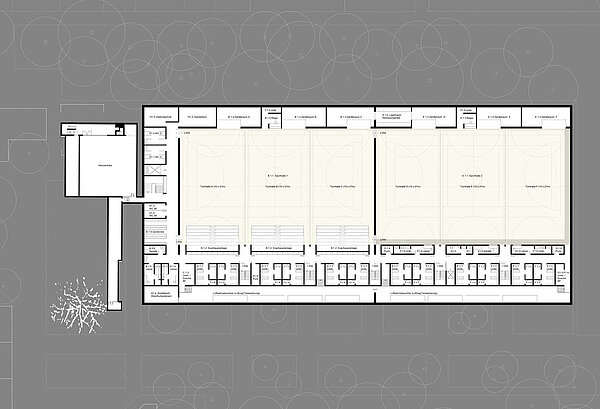
Aus einer werden zwei Dreifeldsporthallen

Was kompliziert klingt ist gar nicht so schwierig: Die eine Halle soll, analog zur früheren Nutzung, dem Schul- und Vereinssport gewidmet werden. Darüber hinaus wird sie für Sportveranstaltungen zur Verfügung stehen und deshalb mit einer beweglichen Besuchertribüne für insgesamt 600 Gäste ausgestattet. Die zweite Halle wird im Schwerpunkt für den Trainingsbetrieb genutzt werden. Aber auch hier kann der Schulsport stattfinden.

Unterhalb des Bestandsgebäudes befindet sich bislang die Energieversorgungszentrale des Schulkomplexes. Eine weitere Anforderung an das neue Bauprojekt ist also die Einbindung und gleichzeitige Modernisierung dieser Anlage, um die Versorgung zu optimieren und zu gewährleisten. Das Thema Nachhaltigkeit steht dabei absolut im Zentrum.

Perfekt integrierter Neubau

Im ausgelobten Wettbewerb setzten sich das Architektenbüro raum-z GmbH und die Tragwerksplaner osd management GmbH, beide aus Frankfurt am Main, durch. Ihr Entwurf sieht einen eingeschossigen, langgezogenen Baukörper vor, der sich zwischen Freibereich und Schulgebäude schön in die Anlage integriert. Die beiden Hallen können über separate Eingänge an den Seiten betreten werden. Die Freiflächen zwischen den Hallen sorgen für eine freundliche und offene Atmosphäre.

Hoch funktional und ästhetisches Design

Der Entwurf der Frankfurter Architekten besticht vor allem durch sein modernes und stimmiges Design. Die umlaufenden Glaselemente in der Fassade sind dabei ein echter Blickfang und sorgen für viel Transparenz. Allerdings sieht der Entwurf auch alle wichtigen Funktionsräume in sinnvoller Anordnung vor. Ganz besonders die Idee, an der Stirnseite der Halle weitere Besucherplätze zu positionieren, überzeugte die Jury. 

Beim Technikkonzept muss allerdings noch nachgearbeitet werden. Hier konnte der Entwurf noch keine überzeugende Lösung anbieten.

Wettbewerbsform Planungswettbewerb mit vorgeschaltetem Teilnahmewettbewerb 
Anzahl teilnehmende Büros 17
Preisgericht Vorsitz: Prof. Gerd Gassmann, Architekt, Karlsruhe
Daniel Fluhrer, Bürgermeister Stadt Karlsruhe
Joachim Frisch, Leiter Schul- und Sportamt, Stadt Karlsruhe
Prof. Dr. Robert Pawlowski, Bauingenieur,
Hochschule für Technik und Wirtschaft, Karlsruhe
Dip. Ing. Albrecht Randecker, Architekt, Stuttgart
Prof. Anne Sick, Leiterin Amt für Hochbau und Gebäudewirtschaft, Stadt Karlsruhe
Jurysitzung 08.02.2019
1. Preis raum-z GmbH Architekten, Frankfurt/M
osd management, Frankfurt/M
2. Preis Kränzle+Fischer-Wasels, Karlsruhe
Engelsmann Peters Beratende Ingenieure, Stuttgart
3. Preis Alten Architekten, Berlin
R&P Ruffert, Berlin
4. Preis Walter Huber Architekten, Stuttgart
Helber+Ruff Beratende Ingenieure, Ludwigsburg
Anerkennung mvm+starke architekten, Köln
Pirlet & Partner Ingenieurgesellschaft, Köln
Preisgelder ingesamt 100.000 Euro
Wettbewerbs-
broschüre
Wettbewerbsbroschüre
29. Juli 2025, Stadt Karlsruhe

-

Kopieren Kopieren Schreiben Schreiben